Work with our architects & team to create your dream modular space that suits your unique needs & location. Our team can handle everything from design, consenting, interiors & the build to delivery, connectivity, site works & landscaping.

Makespace Construction Site Locations: Auckland + Christchurch

From 9sqm to 330sqm+, we’ve delivered over 30 bespoke residential projects across New Zealand since 2023, including breathtaking locations such as Te Arai, Great Barrier Island, Waipu, Waiheke Island, Bannockburn, Ranfurly, Canterbury, Matakana, Tora, Bethell’s Beach, Queenstown, Kai Iwi Lakes, and many more. Work alongside our dedicated Makespace architects (or your preferred architect), to create a bespoke residential design tailored to your unique vision and needs. You dream it, we design and build it! Customise your floorplan, materials and design details.

At Makespace, we focus on blending functionality with meticulous attention to detail, using highest-quality, durable materials that will stand the test of time. Our designs are crafted with landscape connectivity in mind, ensuring your home fits naturally and harmoniously within its environment.

Below you’ll find some of our bespoke projects to date along with some designs our architects have dreamt up to get you inspired on your Makespace journey. Our bespoke builds start from $5,200 NZD per sqm including GST.


Bespoke Builds


Project
Waipu
168sqm

168sqm, x4 Modules
x4 Bedrooms
Location: Waipu
Project Gallery: Here

“In the pristine surrounds of Waipu on New Zealand’s North Island, an architecturally designed modular home from Makespace adds a swathe of subdued drama.” 

- The Local Project


Project
M.Base 01
75sqm

75sqm
x1 Module
x2 Bedrooms

Build cost from $390,000 including GST finished + ready to deliver.


Project
Central Otago
280sqm

280sqm, x3 Modules
excluding garaging
x3 Bedrooms


Project
The Bach
126sqm

126sqm
x3 Bedrooms
x3 Modules

Build cost from $655,200
including GST finished + ready to deliver.


Project
Queens Drive
188sqm

188sqm, Multi Level Build
x3 Modules + upper living room, lower level garage + guest accommodation built on site
Location: Waiheke Island


Project
Beach Front
404sqm

404sqm, x3 Modules + Garaging
x4 Bedrooms
Location: Waiheke Island


Project
The Retreat
36sqm

36sqm
x1 Module
x1 Bedroom

Build cost from $187,200
including GST finished + ready to deliver.


Project
Frankton
128sqm

128sqm, x4 Modules
x4 Bedrooms
Location: Queenstown


Project
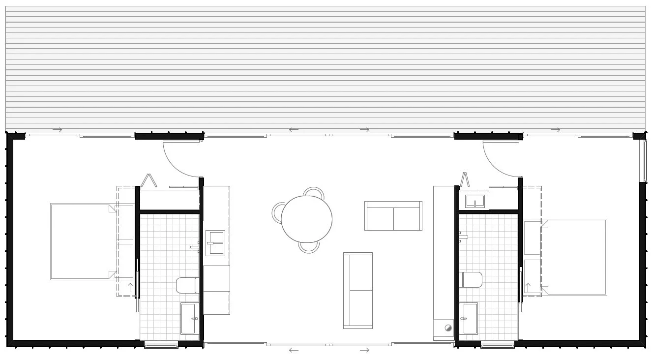
M.Base 02
150sqm

150sqm
x2 Modules
x4 Bedrooms

Build cost from $780,000
including GST finished + ready to deliver.


Project
Mt Lyford
330sqm

330sqm, x2 Modules + Garage
x2 Bedrooms
Location: Canterbury